| Heat Included | |
| Hydro Included | |
| Water Included | |
| Cable TV Included | |
| CAC Included | |
| Common Elements Included | |
| Building Insurance Included | |
| Parking Included |




























































































1580 Mississauga Valley Boulevard 1909
Mississauga Valleys, Mississauga
$468,000
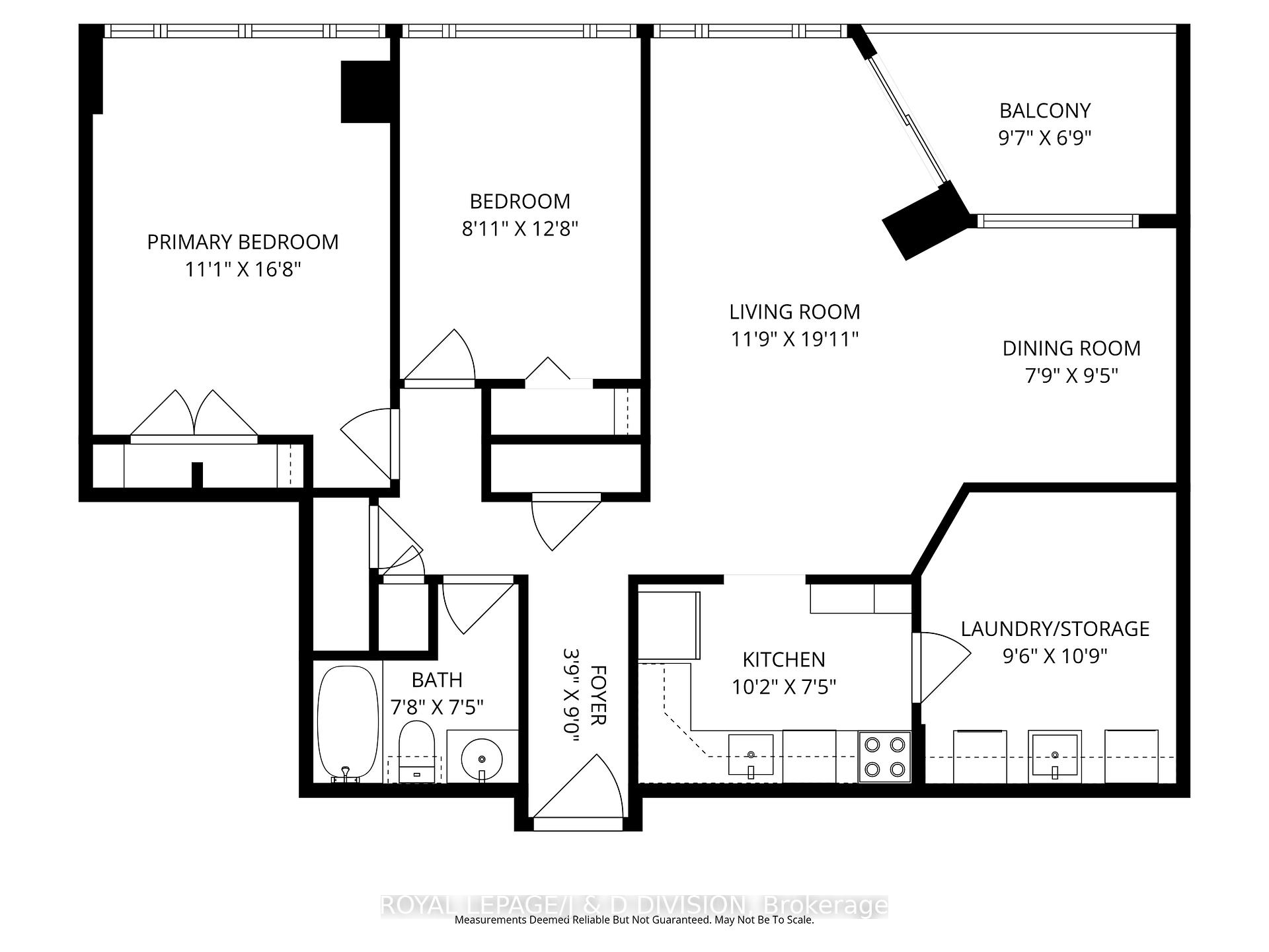
Welcome To This 2-Bedroom Condo Home Show-casing Elegant Finishes and A Serene, Unobstructed View From The West-Facing Expansive Balcony. The Updated Kitchen, With A Stunning Backsplash, Includes New Countertops, Sink, Faucet, And Above-The-Range Exhaust Fan, All of Which Will Delight Any Chef. The Kitchen Also Includes Stainless Steel Appliances And Flows Seamlessly Into A Dedicated Breakfast Area Or Office, Which Doubles As A Convenient Laundry Room With Full-Sized Washer, Dryer and Laundry Sink. This Large Unit, Which Has Been Freshly Painted, Boasts Loads Of In-Suite Storage, Cupboard Space And Wonderful Light-Filled Views From The Newly Installed Windows. The Property Includes Two Parking Spaces And One Locker. This Unit Combines Style, Comfort, And Practicality In One Of The Areas' Most Desirable Addresses. Walking Distances To Schools, Community Centre/Library, Bus Stop At The Front Door, And A Conveniently Located Neighbourhood Shopping Plaza Across The Street. Easy Access To Hwy-403, Downtown Mississauga And Square One.
No extras listed.
| Type | Condo Apartment |
| Style | Apartment |
| Approx. Age | Not available |
| Size | 1000-1199 sq. ft. |
| Maintenance Fees | $1,102 |
| Locker | Owned |
| Balcony | Open |
| Exposure | West |
| Parking Type | Underground |
| Parking Spaces | 2 |
| Parking Features | Underground |
| Property Tax | $2,419 |
| mls© Number | W12839848 |
| Listed By | ROYAL LEPAGE/J & D DIVISION |
Listing History
- No recent sale history for this listing.
- No recent lease history for this listing.
Similar Sold Listings
- No similar listings found.
Similar Active Listings
- No similar listings found.